EOCR을 사용하여 전동기를 제어할 때 일반적으로 사용하는 구조에 대해서 알아보겠습니다.
전동기 제어회로의 기본구조
전동기 제어, 즉 모터컨트롤은 전기제어의 큰 부분을 차지하고 있습니다.

필요한 전장품
모터를 제어하기 위한 회로에 필요한 전장품으로는 다음과 같습니다.
- 회로를 개폐하는 MCCB
- 자기유지를 위한 MC
- 과전류에서 모터를 보호할 EOCR
- 본체인 모터
이렇게 회로의 기본 구조가 됩니다.
회로 설명
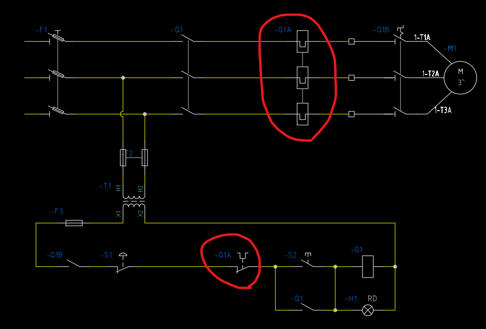
1. 메인전원
2. 제어전원
- 3상전원선에서 2가닥을 끌어와 휴즈에 연결합니다.
- 휴즈에서 변압기 1차측에 연결합니다.
- 변압기 2차측의 2가닥 중 1가닥을 MC 코일과 모터동작램프에 연결하고 1가닥을 휴즈와 연결합니다.
- 휴즈에서 모터 전단의 온/오프 스위치와 연동된 A 접점을 연결합니다.
- 위의 4번 접점에서 스톱버튼의 B접점으로 연결합니다.
- 스톱버튼 B접점을 거쳐 EOCR B접점으로 연결합니다.
- EOCR B접점에서 시작버튼의 A접점과 자기유지용 MC의 A접점으로 연결합니다.
- 시작버튼의 A접점에서 MC 코일의 나머지 접속점에 연결합니다.
- 자기유지용 MC의 A접점에서 MC 코일의 나머지 접속점과 모터동작램프에 연결합니다.
예시)
예를 들어 전동기의 정격이 5A(암페어)라고 해보겠습니다. 그런데 어느 순간 5A 보다 더 많은 전류가 흐른다면 전동기 코일이 타겠죠.
전동기 코일은 단위시간당 흐를 수 있는 최대 전류가 있는데 이 것을 정격전류라고 하고, 그 전류보다 더 많은 전류가 계속 흐르게 되면 코일전선의 코팅, 즉 코일전선의 절연이 파괴되어 인접한 선과 접촉하게 되면 전기적 단락(쇼트)이 됩니다.
이렇게 되면 과전류가 흐르게 될 거고 과전류가 흐르게 되면 흔한 말로 전동기가 타게 되는 겁니다. 실제로 연기가 나기도 하고 불도 나죠.
전동기의 과전류는 어떨 때 생길까
사람의 몸도 평소보다 많은 일을 하면 몸에 무리가 가듯이 전동기도 정해진 힘이 있습니다.
예를 들어 엘리베이터에는 사람이 타는 엘리베이터룸을 끌어올리는 전동기가 있습니다. 사람들이 많이 탔을 때 원래 10명밖에 못 끌어올리는데 20명이 타면 엘리베이터에서는 만원이라고 움직이지 않습니다.
또 다른 예를 들어보면 전동기가 어떤 프로펠러를 돌리는데 거기에 끈 같은 이물질이 낀다면 전동기가 도는데 더 많은 토크가 필요합니다. 이러면 문제가 생깁니다.
어떤 경우에는 베어링이 손상되었거나 구리스라고 하는 윤활제가 잘 작동하지 않거나 벨트나 기어, 체인 같은 것의 장력이 엄청 세거나 하게 되면 전동기는 더 많은 토크를 필요로 하고 더 많은 전류를 달라고 합니다.
그래서 더 많은 전류를 끌어오게 되면 전동기의 코일전선이 소손되게 되는 겁니다.

과전류 계전기(EOCR : Electric Over Current Relay) 기능과 사용방법 모터제어
과전류 계전기(EOCR : Electric Over Current Relay) 기능과 사용방법 모터제어
과전류 계전기란 말 그대로 과한 전류가 흘렀을 때 동작하는 계전기(릴레이)라는 뜻입니다. 주로 모터를 보호할 목적으로 설치합니다. 여기서는 과전류 계전기(EOCR)의 기능과 사용방법에 대해서
sohigeonmin.com
1마력 모터 돌리기: 기동에 필요한 최소한의 재료
버튼하나로 모터를 돌리고 싶은데, 모터와 버튼만 있으면 될까요? 막상 하려고 보면 어려운 것이 모터를 기동 하는 것입니다. 모터의 기동은 전기 초보자가 그냥 하기엔 조금 난이도가 있습니다
sohigeonmin.com
'전기와주변생활' 카테고리의 다른 글
| MC(Magnetic Coil) 전자접촉기 기능과 구조 (0) | 2023.04.04 |
|---|---|
| MCCB 배선용 차단기 / ELCB 누전차단기 (0) | 2023.04.04 |
| 무정전 전원 공급 장치(UPS) (0) | 2023.04.02 |
| 전기를 만드는 발전소: 유형별 소개, 작동 원리 및 장단점 (0) | 2023.04.02 |
| 풍력 발전소의 소개: 작동 원리, 장단점 (0) | 2023.04.02 |
댓글